The Weekly Supercharger: A Fresh Restart (Week 1)
Welcome to this first edition of the Weekly Supercharger!
Today’s highlights will include new Superchargers mostly located in the Western states, along with two sites in the East… and Ohio. For those who don’t like reading very much, I’ve added a TL;DR at the bottom for your enjoyment.
Starting off, we’ve got a new site coming to Hayward, California. After the long limbo about whether Tesla would ever build their Mission Blvd location, permits were filed in June for a site at Jackson Square, about half a mile off I-880. 20 chargers are planned in the outer parking stalls along Amador Street, this according to Tesla’s Structural Analysis report for the site.
- Title Page for the Site
- Specific Location of the Chargers
Next up is Arizona’s location. To no one’s surprise, another Supercharger is coming to the Scottsdale area. Who would ever have seen that coming? But seriously, at this rate it’s looking like Northeast Phoenix is going to have more Superchargers than the rest of the city by year’s end.
Permits were recently issued for a 16-stall station at Village Center Mall in the suburb of Paradise Valley Village. The site is located merely 2 miles from Scottsdale city limits, and just 5 miles from the next nearest Supercharger. Much as I understand that there’s a high concentration of Teslas in this area, I don’t get why the company is devoting so many of their resources to such a small zone.

Permit from the City of Phoenix
Now, time for a site in Florida. While the state has the second most Superchargers in the US, second to California, most of the permitting activity occurs during the Winter months, which is why I don’t often post Florida news during the summer months. However, there’s always a few exceptions, such as this new station in Ocoee.
Back in June, Tesla filed permits for a site at the Michaels Craft Store on W Colonial Dr. The permit was initially rejected, which likely means that Tesla will have to refile in order to continue the process. That said, Tesla recently had this same thing happen on the Tallahassee – Apalachee Pkwy Supercharger, in which another permit was filed and is now in plan check. Chances are the same thing is set to happen with Ocoee.

Permit for the Ocoee Supercharger
The first Supercharger with a site plan for this week is a new location in Wilsonville, Oregon. For some reason, a measly 8 stalls are planned at this site, to be found behind the PetSmart on Jack Burns Blvd, right off I-5. Permits for the site were issued back in April, and construction may soon begin.
- Site Plans for the Wilsonville Supercharger
Up next is a set of two Superchargers coming to Southern Northern California. Soon, the city of Gilroy will be 44 Supercharger stalls wealthier, with the addition of two new sites at the Pacheco Pass Highway exit of El Camino Real.
First off is a 24-stall station at the South Valley Plaza Shopping Center on Automall Parkway. This was formerly one of the few remaining “unknown” locations from Tesla’s hilarious Oopsie of Q4 2022. The second location is a 20-stall site at the Pacheco Center, with the chargers specifically located nearby the Old Navy and Ulta Beauty at 950 Renz Lane. Both permits are currently being reviewed by the city.
- Permit for Gilroy – Automall Pkwy
- Permit for Gilroy – Renz Ln
Now, it’s time for what is easily the most boring find of the week, located in Allamuchy, New Jersey. I don’t have much to say on this one, other than it’s located at the Panther Valley Mall and will have 12 stalls. It might be under construction by now if that’s worth anything.
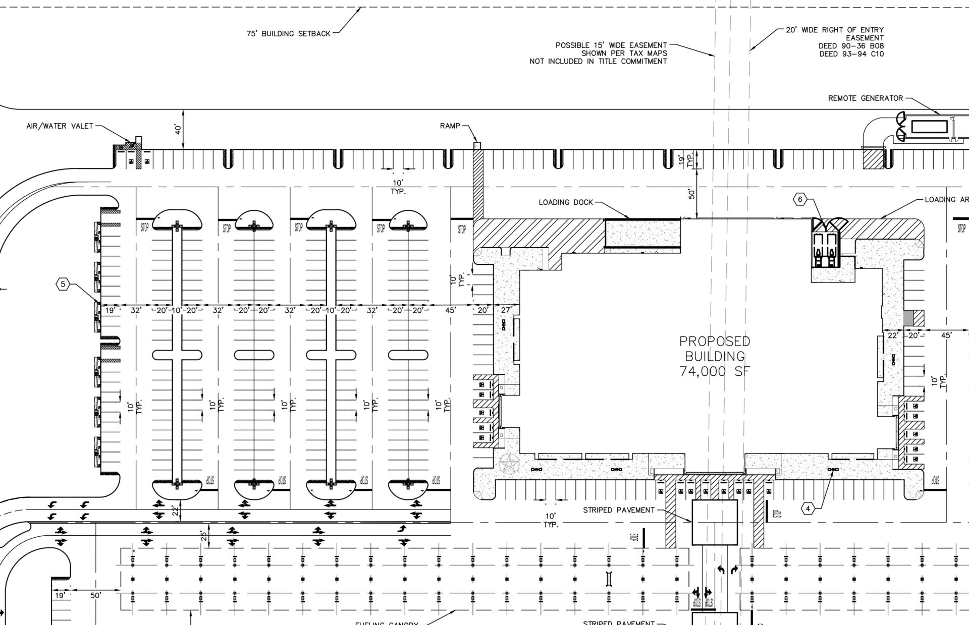
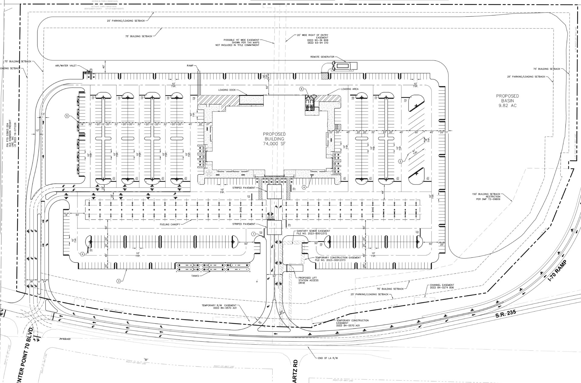
And finally, the last new Supercharger of the week is a huge site coming to Huber Heights, Ohio. This one is still a ways away, but reasonably so because it will be located at the state’s first Buc-ee’s! The city’s mayor recently announced via Facebook that the company had submitted a site plan proposal for a 74,000 square foot convenience store off I-70.
Buc-ee’s representatives are set to appear before the city planning commission on August 15 to present their concept plan. If the project is approved, 24 Supercharger stalls will be built along the northern parking stalls.
- Site plan for the Huber Heights Buc-ee’s
So, that’s it as far as the new sites go. For the updates, I’ll try to keep it as brief as possible, just because this post is way too long already.
Firstly, site plans for Tesla’s Fergus Falls, Minnesota location were recently leaked. 8 prefabricated stalls will soon be built on the east side of the Perkins Restaurant & Bakery parking lot. Additionally, an outline on the plans also mentions the addition of a Shell Recharge station right next to the Supercharger.
- Site plans for the Fergus Falls Supercharger
And lastly (already), construction is soon to begin on Tesla’s third site in New Castle, Delaware at the Wawa on Airport Road. I initially posted about this site way back last year, when a survey on the site was being done, and it now looks like construction is finally set to begin.

811 Dig Ticket for the New Castle Supercharger
In the event that you didn’t bother (or want) to read the whole thing, here’s the TL;DR map with all the locations from this update.
And that’s all, folks. Be sure to come by for next week’s highlights, for which the majority of sites share a common theme. See you then!
Want to see more of our stories on Google?
P.S. — Buying a new Tesla? Click here to save $1,000 USD, while supporting independent news.
Help support us by shopping on Amazon here.
Links in this post are affiliate links, so we earn a tiny commission at no charge to you. Thanks for supporting independent media!










